Компания по управлению коммерческой недвижимостью

Помочь выбрать

Нажимая на кнопку, вы даете согласие на сбор и обработку своих персональных данных
№ лота R00387
Адрес ул. Восстания, 100к7050
№ здания 7050
Этаж 1
№ помещения
Назначение Производство
Готовность Готов к въезду
Коммерческие условия Аренда
Площадь, м2 693.5
Арендная ставка, руб. за м2 1 250
Арендная плата, руб. в месяц 866 875

оставьте заявку на этот лот
и мы свяжемся с вами в течение дня

PDF презентацию данного лота
можно сохранить или отправить на почту

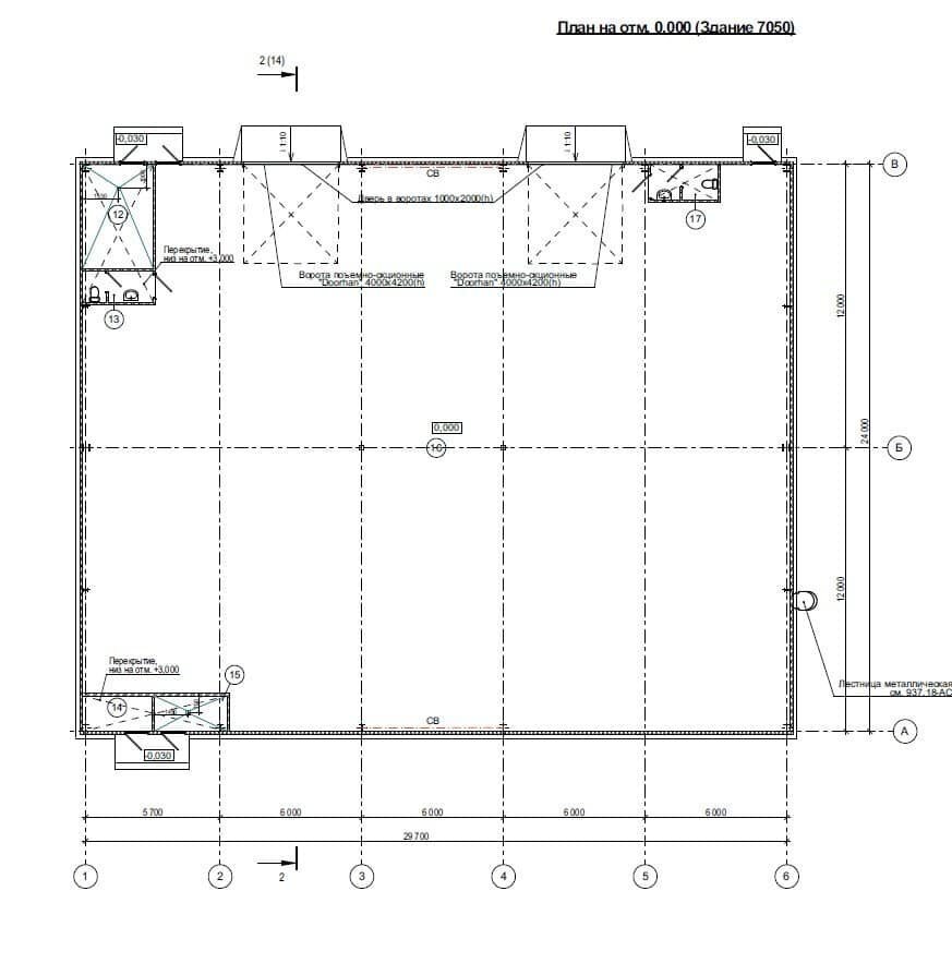
План помещения

Описание

  • Назначение: под производство
  • Общая площадь: 693,5 м²
  • Каркас здания – ж/б колонны, металлические фермы
  • Габариты блоков – 30 х 24 м (Ш х Г)
  • Высота от пола до нижней части несущей конструкции кровли – 6 м
  • Двое секционных ворот на один блок на отм. 0,000 м, габариты ворот – 4,2 х 4,0 м (В х Ш)
  • Пол – бетонный с упрочненным верхним слоем, нагрузка до 5 т/м²

Инфраструктура

  • Каждый бокс оснащен центральной системой отопления, вводным распределительным устройством системы электроснабжения, системой освещения, санузлом, вводами систем водоснабжения и канализации
  • Базовые электрические мощности предусмотренные в каждом блоке из расчета 80 Вт на 1 м²
  • Система пожарного водопровода
  • Адресная система пожарной сигнализации
  • Система оповещения и управления эвакуацией
  • Система наружного видеонаблюдения

Преимущества

  • Развитая инфраструктура индустриального парка – обновленные инженерные сети, дороги
  • АЗС «Татнефть»
  • Комбинат общественного питания, кафе
  • Пять контрольно-пропускных пунктов (два со стороны ул. Васильченко и три со стороны ул. Восстания)
  • Близость объездной трассы М7
  • Наличие железнодорожной ветки, проходящей через имущественный комплекс
  • Удобная и понятная логистика на территории
  • Наличие терминалов нескольких крупных федеральных логистических компаний по приему и отправки грузов - «Деловые линии», «ПЭК», «Байкал-Сервис», «Major» и др.
  • Закрытая охраняемая территория индустриально парка
  • Пожарная часть на территории
  • Профессиональная управляющая компания, принцип работы «ОДНО ОКНО»

Примечание

 

  • Арендная ставка – 1250 руб./м² в месяц с НДС.
  • Дополнительно оплачиваются эксплуатационные и коммунальные услуги.

Настоящее коммерческое предложение носит исключительно информационный характер и не является офертой (ст.435 ГК РФ).

Объект на карте