Компания по управлению коммерческой недвижимостью

Помочь выбрать

Нажимая на кнопку, вы даете согласие на сбор и обработку своих персональных данных
№ лота R00393
Адрес ул. Восстания, 100
№ здания 266Д,К
Этаж 1
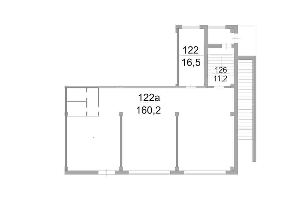
№ помещения 122; 122А
Назначение Офис, Торговля, Свободное назначение
Готовность Готов к въезду
Коммерческие условия Аренда
Площадь, м2 176.7
Арендная ставка, руб. за м2 1 650
Арендная плата, руб. в месяц 291 555

оставьте заявку на этот лот
и мы свяжемся с вами в течение дня

PDF презентацию данного лота
можно сохранить или отправить на почту

План помещения

Описание

В Бизнес-центре "Технополис" класса "B" на первом этаже с отдельным входом сдается в аренду помещение свободного назначения (возможно использовать под торговлю, офис, учебный класс, шоу рум) общей площадью 176 кв.м. Выполнен качественный ремонт. Светодиодные светильники.

Инфраструктура

  • Комната приема пищи
  • Собственный с/у (раздельный)
  • Место для вывески на фасаде здания
  • Современное телекоммуникационное оборудование (оптоволокно): телефония и интернет

Преимущества

• Большая бесплатная парковка на 350 м/мест
• Первая линия по ул. Восстания
• Шаговая доступность от остановки общественного транспорта
• Наличие терминалов нескольких крупных федеральных логистических компаний по приему и отправки грузов - «Деловые линии», «ПЭК», «Байкал-Сервис», «Major» и др.
• Возможность аренды производственных и складских помещений на территории Технополиса "Химград"

Примечание

  • Арендная ставка 1650 руб./кв.м. включает НДС, эксплуатационные услуги
  • Дополнительно оплачивается электроэнергия согласно показаниям индивидуального прибора учета.

Настоящее коммерческое предложение носит исключительно информационный характер и не является офертой (ст.435 ГК РФ).

Объект на карте