Компания по управлению коммерческой недвижимостью

Помочь выбрать

Нажимая на кнопку, вы даете согласие на сбор и обработку своих персональных данных
№ лота R00438
Адрес территория Химград, д.130
№ здания 5090
Этаж 1
№ помещения 10, 11
Назначение Производство
Готовность Готов к въезду
Коммерческие условия Аренда
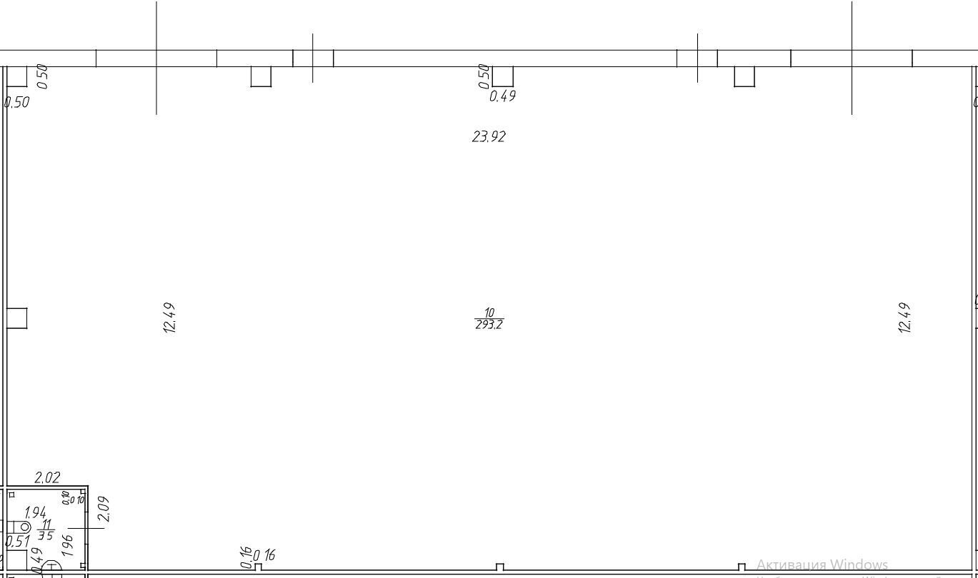
Площадь, м2 296.7
Арендная ставка, руб. за м2 1 220
Арендная плата, руб. в месяц 361 974

оставьте заявку на этот лот
и мы свяжемся с вами в течение дня

PDF презентацию данного лота
можно сохранить или отправить на почту

План помещения

Описание

Новое производственное помещение площадью 296,7 кв.м в Индустриальном парке на территории Технополиса "Химград".

Только для субъектов МСП занятых в области "Обрабатывающего производства".

Характеристики объекта:

  • Каркас здания – ж/б колонны и фермы
  • Габариты производственного блока – 24 х 12 м (Ш х Г)
  • Двое секционных ворот на блок на отм. 0,000 м, габариты ворот – 3,6 х 3,0 м (В х Ш)
  • Высота от пола до нижней части несущей конструкции кровли – 6 м
  • Пол – бетонный с упрочненным верхним слоем, нагрузка до 5 т/ кв.м

Инфраструктура

  • Бокс оснащен центральной системой отопления, вводным распределительным устройством системы электроснабжения, системой освещения, санузлом, вводами систем водоснабжения и канализации,
  • Базовые электрические мощности предусмотренные в каждом блоке из расчета 80 Вт на 1 м²
  • Система пожарного водопровода
  • Адресная система пожарной сигнализации
  • Система оповещения и управления эвакуацией
  • Система наружного видеонаблюдения

Преимущества

  • Развитая инфраструктура индустриального парка – обновленные инженерные сети, дороги, АЗС «Татнефть», комбинат общественного питания, кафе, пять контрольно-пропускных пунктов (два со стороны ул. Васильченко и три со стороны ул. Восстания)
  • Близость объездной трассы М7
  • Наличие железнодорожной ветки, проходящей через имущественный комплекс
  • Удобная и понятная логистика на территории
  • Наличие терминалов нескольких крупных федеральных логистических компаний по приему и отправки грузов - «Деловые линии», «Байкал-Сервис», «Азбука Логистики» и др.
  • Закрытая охраняемая территория индустриального парка
  • Пожарная часть на территории
  • Профессиональная управляющая компания, принцип работы «ОДНО ОКНО»

Примечание

  • Арендная ставка - 1 220 руб./кв. м в месяц с НДС
  • Дополнительно оплачиваются эксплуатационные и коммунальные услуги

Настоящее коммерческое предложение носит исключительно информационный характер и не является офертой (ст.435 ГК РФ).

Объект на карте