Компания по управлению коммерческой недвижимостью

Помочь выбрать

Нажимая на кнопку, вы даете согласие на сбор и обработку своих персональных данных
№ лота R00468
Адрес территория Химград, д. 58
№ здания 9160 (23)
Этаж 2
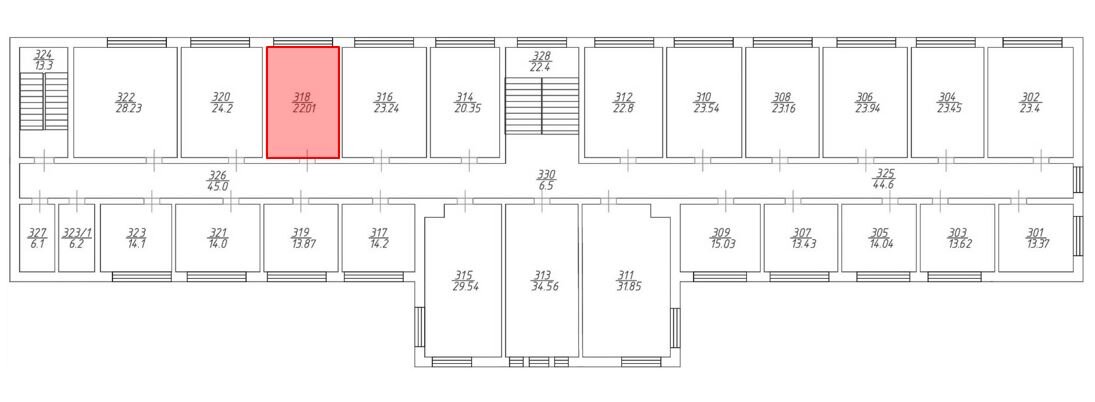
№ помещения 214
Назначение Офис
Готовность Готов к въезду
Коммерческие условия Аренда
Площадь, м2 22
Арендная ставка, руб. за м2 1 380
Арендная плата, руб. в месяц 30 360

оставьте заявку на этот лот
и мы свяжемся с вами в течение дня

PDF презентацию данного лота
можно сохранить или отправить на почту

План помещения

Описание

В офисном здании у Центрального КПП Технополиса "Химград", на третьем этаже, сдается в аренду офисное помещение площадью 22,0 кв. м.

  • Пол - коммерческий линолеум
  • Стены - окрашенные обои
  • Потолок - подвесной типа "Армстронг"

Инфраструктура

  • Современное телекоммуникационное оборудование (оптоволокно): телефония и интернет
  • Система контроля и управления доступом
  • Система видеонаблюдения

Преимущества

  • Бесплатная парковка
  • Первая линия по ул. Восстания
  • Шаговая доступность от остановки общественного транспорта
  • Наличие терминалов нескольких крупных федеральных логистических компаний по приему и отправки грузов - «Деловые линии», «Норд Вил», «Байкал-Сервис», «Major» и др.
  • Возможность аренды производственных и складских помещений на территории Технополиса "Химград"
  • Предоставляется юридический адрес

Примечание

  • Арендная ставка НДС не облагается
  • Коммунальные и эксплуатационные платежи включены в арендную ставку

Настоящее коммерческое предложение носит исключительно информационный характер и не является офертой (ст.435 ГК РФ).

Объект на карте