Компания по управлению коммерческой недвижимостью

Помочь выбрать

Нажимая на кнопку, вы даете согласие на сбор и обработку своих персональных данных
№ лота R00506
Адрес территория Химград, д. 113
№ здания 5130
Этаж 1
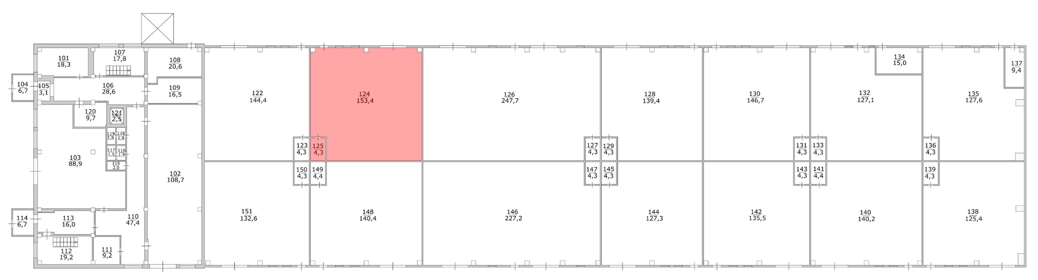
№ помещения 124, 125
Назначение Производство
Готовность Готов к въезду
Коммерческие условия Аренда
Площадь, м2 157.7
Арендная ставка, руб. за м2 1 270
Арендная плата, руб. в месяц 200 279

оставьте заявку на этот лот
и мы свяжемся с вами в течение дня

PDF презентацию данного лота
можно сохранить или отправить на почту

План помещения

Описание

  • Каркас здания – ж/б колонны и фермы
  • Габариты производственного блока – 12 х 12 м (Ш х Г)
  • Высота от пола до нижней части несущей конструкции кровли – 6 м
  • Одни секционные ворота на блок на отм. 0,000 м, габариты ворот – 3,6 х 3,0 м (В х Ш)
  • Пол – бетонный с упрочненным верхним слоем, нагрузка до 5 т/ кв.м.

Инфраструктура

  • Блок оснащен центральной системой отопления, вводным распределительным устройством системы электроснабжения, системой освещения, санузлом, вводами систем водоснабжения и канализации.
  • Выделенная электрическая мощность - 25 кВт, с возможностью увеличения
  • Система пожарного водопровода
  • Адресная система пожарной сигнализации
  • Система оповещения и управления эвакуацией
  • Система наружного видеонаблюдения

Преимущества

  • Развитая инфраструктура индустриального парка – обновленные инженерные сети, дороги,
  • АЗС «Татнефть»
  • комбинат общественного питания, кафе
  • Пять контрольно-пропускных пунктов (два со стороны ул. Васильченко и три со стороны ул. Восстания)
  • Близость объездной трассы М7
  • Наличие железнодорожной ветки, проходящей через имущественный комплекс
  • Удобная и понятная логистика на территории
  • Наличие терминалов нескольких крупных федеральных логистических компаний по приему и отправки грузов - «Деловые линии», «ПЭК», «Байкал-Сервис» и др.
  • Закрытая охраняемая территория индустриально парка
  • Пожарная часть на территории
  • Профессиональная управляющая компания, принцип работы «ОДНО ОКНО»

Примечание

  • Арендная ставка – 1 270 руб./ кв.м. в месяц с НДС
  • Дополнительно оплачиваются эксплуатационные и коммунальные услуги
  • Производственные помещения для субъектов МСП в области "Обрабатывающего производства"

Настоящее коммерческое предложение носит исключительно информационный характер и не является офертой (ст.435 ГК РФ).

Объект на карте