Компания по управлению коммерческой недвижимостью

Помочь выбрать

Нажимая на кнопку, вы даете согласие на сбор и обработку своих персональных данных
№ лота R00522
Адрес территория Химград, здание 109
№ здания 5110
Этаж 2
№ помещения 1-11
Назначение Офис
Готовность Готов к въезду
Коммерческие условия Аренда
Площадь, м2 179.6
Арендная ставка, руб. за м2 800
Арендная плата, руб. в месяц 143 680

оставьте заявку на этот лот
и мы свяжемся с вами в течение дня

PDF презентацию данного лота
можно сохранить или отправить на почту

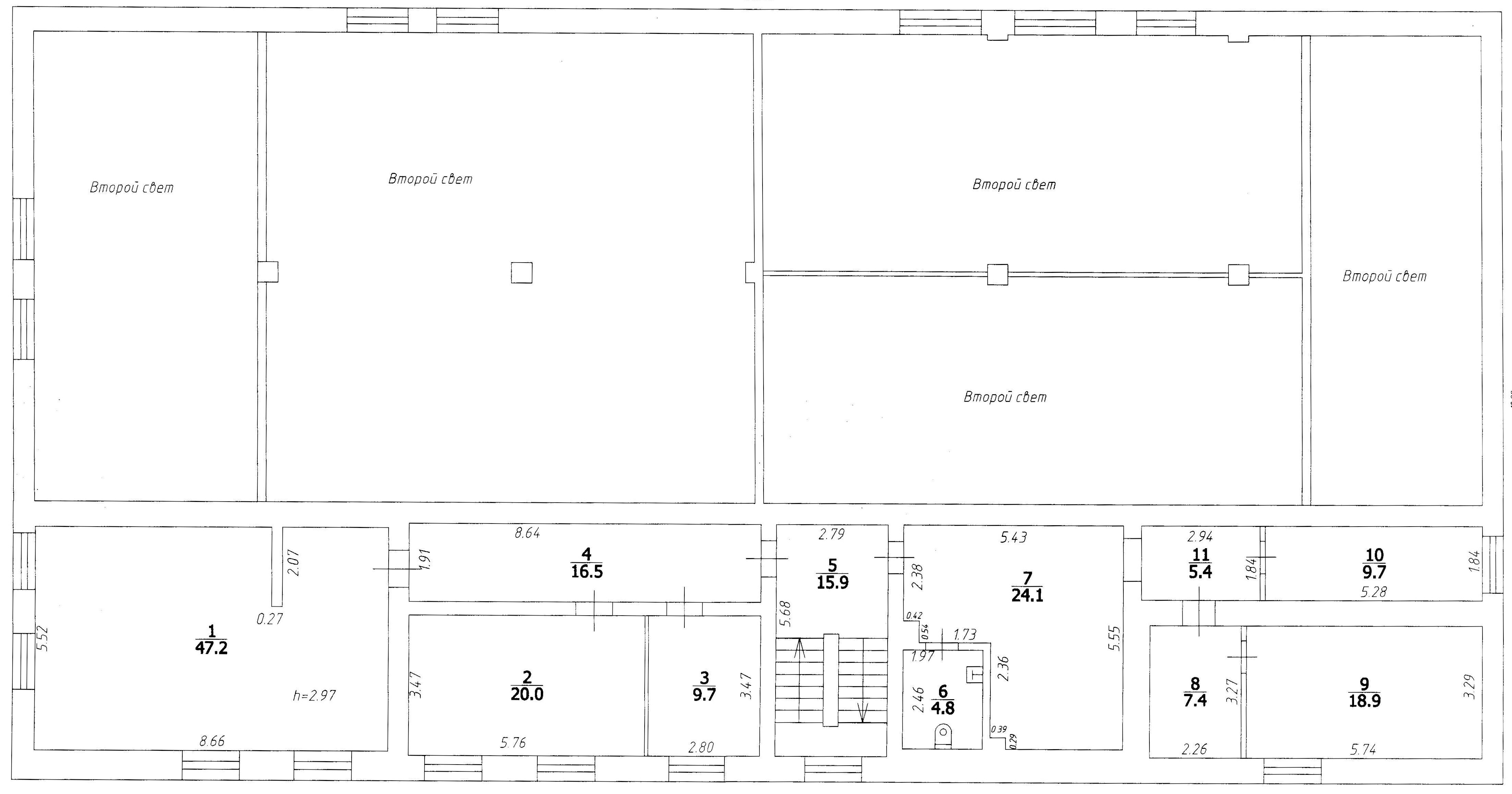
План помещения

Описание

Сдаются в аренду офисные помещения на 2 этаже административного отдельно стоящего здания, расположенного на территории Технополиса "Химград". Общая площадь помещений: 179,6 кв.м (с возможностью аренды помещений блоками по 93,40 кв.м. и 70,30 кв.м.).  

Отделка помещений:

  • пол - коммерческий линолеум,
  • стены - обои,
  • потолок - подвесной типа "Армстронг"

Инфраструктура

 

  • Современное телекоммуникационное оборудование (оптоволокно): телефония и интернет
  • Кондиционер
  • Система видеонаблюдения

Преимущества

  • Возможность аренды производственных помещений на территории Технополиса "Химград"
  • Закрытая охраняемая территория индустриально парка
  • Развитая инфраструктура индустриального парка – обновленные инженерные сети, дороги, АЗС «Татнефть», комбинат общественного питания, кафе, пять контрольно-пропускных пунктов (два со стороны ул. Васильченко и три со стороны ул. Восстания)
  • Наличие терминалов нескольких крупных федеральных логистических компаний по приему и отправки грузов - «Деловые линии», «Норд Вил», «Байкал-Сервис», «Major», «Мэйджик Транс» и др.

Примечание

  • Арендная ставка - 800 руб./кв. м без НДС
  • Дополнительно оплачиваются эксплуатационные и коммунальные услуги

Настоящее коммерческое предложение носит исключительно информационный характер и не является офертой (ст.435 ГК РФ).

Объект на карте