Компания по управлению коммерческой недвижимостью

Помочь выбрать

Нажимая на кнопку, вы даете согласие на сбор и обработку своих персональных данных
№ лота R00499
Адрес территория Химград, д. 102
№ здания 9020 (45)
Этаж 1
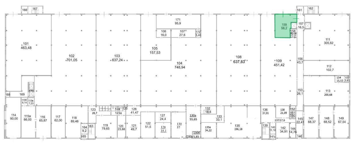
№ помещения 159
Назначение Склад, Производство, Свободное назначение
Готовность Готов к въезду
Коммерческие условия Аренда
Площадь, м2 58.2
Арендная ставка, руб. за м2 833
Арендная плата, руб. в месяц 48 481

оставьте заявку на этот лот
и мы свяжемся с вами в течение дня

PDF презентацию данного лота
можно сохранить или отправить на почту

План помещения

Описание

На территории Технополиса "Химград" сдается в аренду неотапливаемое, сухое помещение свободного назначения на первом этаже площадью 58,2 кв. м.

  • Ворота
  • Высота от пола до нижней части перекрытия – 6 м
  • Пол – бетонный

Инфраструктура

  • Освещение
  • Пожарная сигнализация
  • Круглосуточная охрана здания

Преимущества

  • Шаговая доступность до остановки общественного транспорта
  • Удобные подъездные пути для грузового транспорта
  • Парковка для легковых автомобилей
  • Наличие терминалов нескольких крупных федеральных логистических компаний по приему и отправки грузов - «Деловые линии», «ПЭК», «Байкал-Сервис», «Major» и др.
  • Закрытая охраняемая территория индустриально парка
  • Пункты общественного питания
  • Возможность арендовать офисные помещения на территории Технополиса "Химград"

Примечание

  • Арендная ставка 833,34 руб./кв.м. в месяц без НДС. Форма расчета ОСН (НДС 22%)
  • Дополнительно оплачиваются коммунальные и эксплуатационные услуги

Настоящее предложение носит исключительно информационный характер и не является офертой (ст.435 ГК РФ)

Настоящее коммерческое предложение носит исключительно информационный характер и не является офертой (ст.435 ГК РФ).

Объект на карте